$2,024,000
2,739
SQ FT
$739
SQ/FT
2638 Park Wilshire Drive
@ Potrero - 10 - Willow Glen, San Jose
- 5 Bed
- 3 Bath
- 2 Park
- 2,739 sqft
- SAN JOSE
-
-
Sat Feb 7, 1:00 pm - 4:00 pm
-
Sun Feb 8, 1:00 pm - 4:00 pm
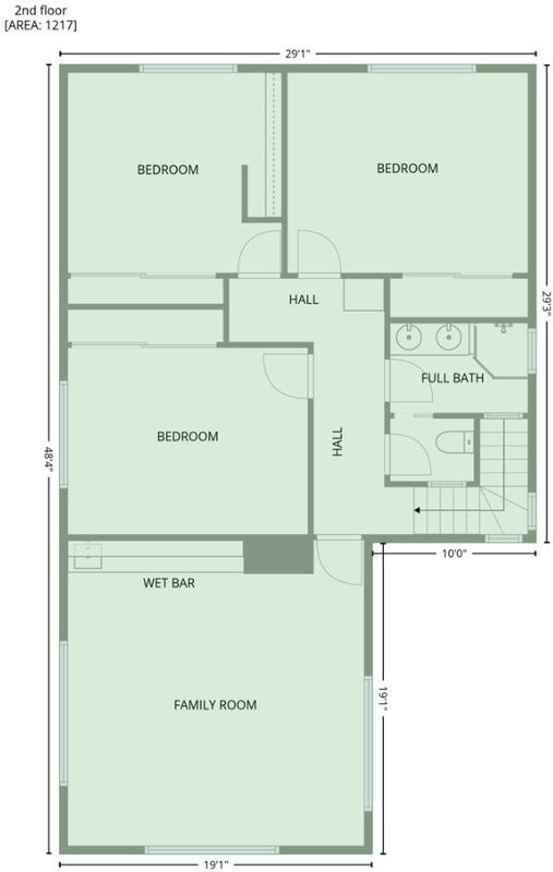
First time on the market, this 2,739 SF 5-bedroom, 3-bath home sits on a 6,324 SF lot in the desirable Doerr Park neighborhood. The home offers generous room sizes and a flexible floor plan well suited for a variety of living needs and future updates. A welcoming foyer opens to an expansive living room with a pass-through fireplace, wood-framed French doors and a layout that accommodates a formal dining space.The centrally located kitchen features ample cabinetry and counter space, double ovens, a built-in refrigerator, and an adjacent eat-in dining area. The ground-floor primary bedroom includes French doors and an en-suite bathroom with vanity and walk-in shower. 2 additional main-level bedrooms and a guest bathroom with shower-over-tub provide flexibility for guests, office use, or multigenerational living. Upstairs includes 3 additional bedrooms, a full bathroom with dual sinks and walk-in shower, and a large great room. Outdoor features include a covered patio, lawn, mature landscaping, wood deck, and spacious side yards. Additional amenities: A/C, attached 2-car garage, extended driveway, and boat parking. Located across from Doerr Park and close to downtown Willow Glen, Campbell, shopping, dining, and major commute routes, transform a beloved home into something beautiful.
- Days on Market
- 0 days
- Current Status
- Active
- Original Price
- $2,024,000
- List Price
- $2,024,000
- On Market Date
- Feb 5, 2026
- Property Type
- Single Family Home
- Area
- 10 - Willow Glen
- Zip Code
- 95124
- MLS ID
- ML82033908
- APN
- 442-29-010
- Year Built
- 1963
- Stories in Building
- 1
- Possession
- COE
- Data Source
- MLSL
- Origin MLS System
- MLSListings, Inc.
Bagby Elementary School
Public K-5 Elementary
Students: 511 Distance: 0.4mi
Willow Vale Christian Children
Private PK-12 Combined Elementary And Secondary, Religious, Coed
Students: NA Distance: 0.5mi
Grace Christian School
Private K-6 Elementary, Religious, Nonprofit
Students: 11 Distance: 0.5mi
Fammatre Elementary School
Charter K-5 Elementary
Students: 553 Distance: 0.6mi
Price Charter Middle School
Charter 6-8 Middle
Students: 962 Distance: 0.6mi
Chrysallis Elementary School
Private K-4 Elementary, Coed
Students: 5 Distance: 0.6mi
- Bed
- 5
- Bath
- 3
- Double Sinks, Full on Ground Floor, Primary - Stall Shower(s), Shower over Tub - 1, Stall Shower - 2+, Updated Bath
- Parking
- 2
- Attached Garage, Gate / Door Opener, On Street, Room for Oversized Vehicle
- SQ FT
- 2,739
- SQ FT Source
- Unavailable
- Lot SQ FT
- 6,324.0
- Lot Acres
- 0.145179 Acres
- Kitchen
- Garbage Disposal, Microwave, Oven Range - Electric, Refrigerator
- Cooling
- Central AC
- Dining Room
- Dining Area in Living Room, Eat in Kitchen
- Disclosures
- Lead Base Disclosure, NHDS Report
- Family Room
- Other
- Foundation
- Concrete Perimeter and Slab
- Fire Place
- Dual See Thru, Living Room
- Heating
- Baseboard, Central Forced Air, Fireplace
- Laundry
- Dryer, In Garage, Washer
- Views
- Greenbelt, Neighborhood, Park
- Possession
- COE
- Fee
- Unavailable
MLS and other Information regarding properties for sale as shown in Theo have been obtained from various sources such as sellers, public records, agents and other third parties. This information may relate to the condition of the property, permitted or unpermitted uses, zoning, square footage, lot size/acreage or other matters affecting value or desirability. Unless otherwise indicated in writing, neither brokers, agents nor Theo have verified, or will verify, such information. If any such information is important to buyer in determining whether to buy, the price to pay or intended use of the property, buyer is urged to conduct their own investigation with qualified professionals, satisfy themselves with respect to that information, and to rely solely on the results of that investigation.
School data provided by GreatSchools. School service boundaries are intended to be used as reference only. To verify enrollment eligibility for a property, contact the school directly.















































