1066 41st Avenue, #D106

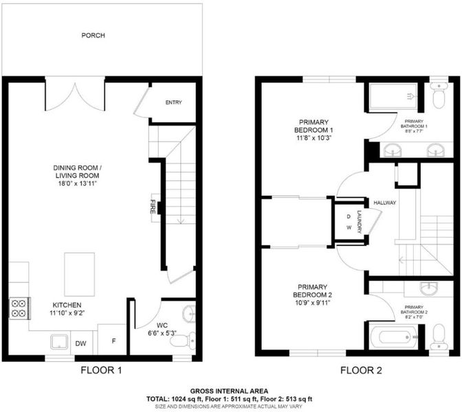
$1,100,000 1,006 SQ FT
$1,093 SQ/FT

1066 41st Avenue, #D106

@ Nova - 45 - Live Oak, C API Tola

Map direct
  • 2 Bed
  • 3 Bath
  • 2 Park
  • 1,006 sqft
  • CAPITOLA
  • Payment calculator
DOM
5
CON
  • Favorite
  • Hide
Message Kelly Y Kang
  • Sat Feb 7, 12:00 pm - 3:00 pm

  • Sun Feb 8, 12:00 pm - 3:00 pm

Beautifully remodeled & rare offering in Capitola Beach Villas! Dont miss out on this 2-story townhouse-style condo in the coveted Capitola Beach Villas community. One of the most desirable floor plans in the complex, this unique unit features a ground-level entry with a private patio, a rare and highly sought-after feature. Inside, you'll find a stunning, tastefully updated kitchen, a convenient half bath on the main floor, and two primary suite options upstairs, offering exceptional flexibility and comfort. Additional perks include in-unit laundry, a 1-car garage, and one assigned parking space. Units in this complex seldom come on the market, and this one stands out as one of the best. The location is unbeatable, with surf shops, restaurants, and coffee spots within minutes, and the iconic Pleasure Point beaches just a short walk away. Ideal for anyone who wants to live by the beach while enjoying all the vibrant lifestyle amenities Capitola and Pleasure Point have to offer.

Days on Market
5 days
Current Status
Active
Original Price
$1,100,000
List Price
$1,100,000
On Market Date
Feb 2, 2026
Property Type
Condominium
Area
45 - Live Oak
Zip Code
95010
MLS ID
ML82029149
APN
034-711-07-000
Year Built
2008
Stories in Building
2
Possession
Unavailable
Data Source
MLSL
Origin MLS System
MLSListings, Inc.
Bed
2
Bath
3
Parking
2
Assigned Spaces, Attached Garage, Common Parking Area
SQ FT
1,006
SQ FT Source
Unavailable
Cooling
None
Dining Room
Dining Area
Disclosures
Natural Hazard Disclosure
Family Room
No Family Room
Foundation
Other
Heating
Central Forced Air
* Fee
$588
Name
Decamara Property Management
Phone
831-688-0500
*Fee includes
Common Area Electricity, Exterior Painting, Landscaping / Gardening, Maintenance - Common Area, Roof, and Sewer

MLS and other Information regarding properties for sale as shown in Theo have been obtained from various sources such as sellers, public records, agents and other third parties. This information may relate to the condition of the property, permitted or unpermitted uses, zoning, square footage, lot size/acreage or other matters affecting value or desirability. Unless otherwise indicated in writing, neither brokers, agents nor Theo have verified, or will verify, such information. If any such information is important to buyer in determining whether to buy, the price to pay or intended use of the property, buyer is urged to conduct their own investigation with qualified professionals, satisfy themselves with respect to that information, and to rely solely on the results of that investigation.

School data provided by GreatSchools. School service boundaries are intended to be used as reference only. To verify enrollment eligibility for a property, contact the school directly.

Listings © 2026 MLSListings Inc

Copyright © 2026 Theo Inc. All Rights Reserved